イオン直結の最上階 15階!
南向きバルコニーからリバービュー
築浅物件(築1年)
| 所在: | 新潟市中央区白山浦1丁目425番地9 |
|---|---|
| 交通: | 新潟交通バス「市役所前」徒歩2分 |
| 価格: | 4,800万円 |
| 建物 | |
|---|---|
| 構造 | 鉄筋コンクリート造 |
| 所在階/階建 | 15階/15階建 |
| 新築年月日 | 2025年1月 |
| 専有面積(壁芯) | 62.76㎡ |
| バルコニー面積 | 13.02㎡ |
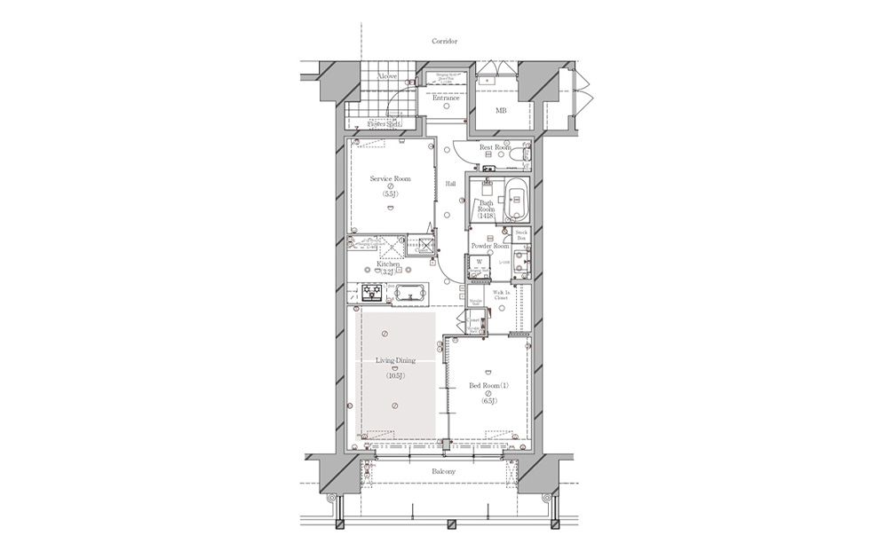
| 間取り | 1LDK+S+WIC |
| 方位 | 南 |
| 総戸数 | 116戸 |
| 現況 | 居住中 |
| 引渡 | 要相談 |
| 設備 | |
|---|---|
| 設備 | 電気・水道・都市ガス・床暖房・システムキッチン・食洗器・無水両面焼きグリル・ホーローキッチンパネル・ 複層ガラス・24時間換気・TVモニタ付インターホン・浴室換気暖房乾燥機・ウォークインクローゼット・節水型トイレ・ゲストルーム・ワーキングスペース・宅配ボックス |
| 駐車場 | 有 18,150円(自走式賃貸駐車場) 屋根有、エレベーター近く |
| 駐輪場 | 有 100~300円/月 |
| その他 |
|---|
| - |
| 土地 | |
|---|---|
| 権利 | 所有権 |
| 借地期間 | - |
| 借地料 | - |
| 都市計画 | 市街化区域 |
| 用途地域 | 近隣商業地域 |
| 国土法届出 | 不要 |
| 管理 | |
|---|---|
| 管理形態 | 委託管理 |
| 管理費・修繕積立金 | 15,750円/5,020円(月々) |
| 管理会社 | 大和地所コミュニティライフ株式会社 |
| 備考 | |
|---|---|
| 備考 | 住宅性能評価取得・スケルトンインフィル工法・住戸外パイプシャフト・2重床2重天井・全住戸セコムセキュリティシステム・AED(1階共用部)・24時間ゴミ出し可能・タイヤラック(上段300円・下段500円/月)・駐輪場(100~300円/月) ※仲介手数料(売買価格×3%+6万円に消費税を加えた金額) |
| 取引態様 | 仲介 |
| 最終更新日 | 令和8年2月20日 |
| 次回更新予定日 | 随時 |